Property Type
Condo, Ground Level Unit
Parking
1 parking
MLS #
R3057937
Size
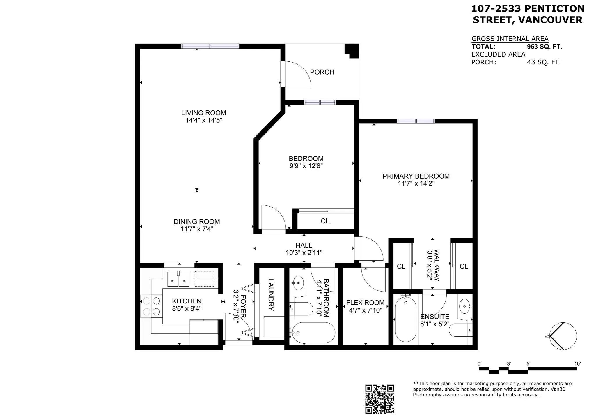
953 sqft
Basement
None
Listed on
-
Lot size
-
Tax
$992.45 /yr
Days on Market
-
Year Built
1994
Maintenance Fee
$517.34 /mo